
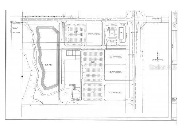
13.28 commercial acres. Infrastructure in place including drainage. Property has frontage and access on US 301 and CR 42. Near the Villages, great visibility. Outparcels available.
IDX information is provided exclusively for personal, non-commercial use, and may not be used for any purpose other than to identify prospective properties consumers may be interested in purchasing. Information is deemed reliable but not guaranteed. Some IDX listings have been excluded from this website. Listing Information presented by local MLS brokerage: Darren Greene
Last Updated: . Source: SMLS
Provided By
Listing Agent: Frederick Krim, Jr. (#MFR271511219)
Listing Office: BOYD REAL ESTATE LLC (#MFR271501098)
Provided By (Buyer)
Buyer's Agent: Frederick Krim, Jr. (#MFR271511219)
Buyer's Office: BOYD REAL ESTATE LLC (#MFR271501098)
